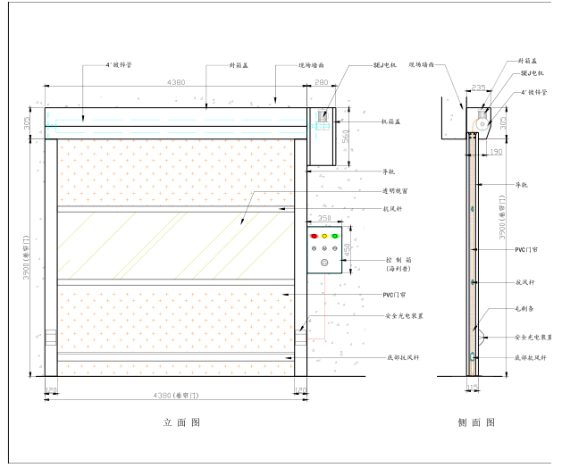
興德門業教您認識快速卷門
來源:東莞市市興德門業有限公司 日期:2017年09月13日
分類:新聞動態
原創文章如轉載,請注明:轉載自[東莞市市興德門業有限公司] http://m.fsdazhan.com/news_6.html
本文鏈接:http://m.fsdazhan.com/news_6-385.html
上一篇:購買佛山快速卷簾門注意的八個事項原創文章如轉載,請注明:轉載自[東莞市市興德門業有限公司] http://m.fsdazhan.com/news_6.html
本文鏈接:http://m.fsdazhan.com/news_6-385.html
下一篇:佛山快速卷簾門的各項指標講解







